Wodzisław Śląski

Mieszkanie na sprzedaż

Opis nieruchomości

Przestrzeń dla wymagających, funkcjonalność i jakość
dla tych, którzy doceniają najwyższe standardy :)

NA SPRZEDAŻ III ETAP APARTAMENTÓW PREMIUM W WODZISŁAWIU PRZY ULICY LESZKA 


Oferta dotyczy apartamentu NA PIĘTRZE o powierzchni  76  m2 - aktualnie zostały dwa apartamenty !

W Wodzisławiu Śląskim powstaje kontynuacja  II etapu osiedla PREMIUM III - kolejna inwestycja dewelopera z  firmy BUD-REM z Radlina. To niezwykle nowoczesne osiedle oferuje bezczynszowe apartamenty lub segmenty w stanie deweloperskim, utrzymane w najwyższej jakości i zaprojektowane zgodnie z najnowszymi trendami. 
Mieszkanie będzie  przygotowane do sprzedaży  w trzecim kwartale  2024r. !

LOKALIZACJA
Osiedle zlokalizowane jest w kameralnej zabudowie jednorodzinnej, w otoczeniu przyrody, z szybkim dostępem do sklepów, szkół, czy parku "Trzy Wzgórza". Odległość od centrum miasta to około 2 km. 

INWESTYCJA
Nowe osiedle to zespół  5 segmentów jednopiętrowych- dwulokalowych  w zabudowie wolnostojącej. Budynek cechuje bardzo funkcjonalny rozkład i współczesna architektura, duże i widne pomieszczenia oraz dbałość o jakość i klasę materiałów użytych do budowy. 
Każdy z 10 apartamentów został zaprojektowany w taki sposób aby mógł tworzyć oddzielne lokale -parter/piętro- lub jeden duży -cały segment-.    

UKŁAD APARTAMENTÓW
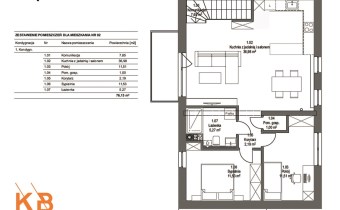
Lokal ma powierzchnię  76,13 m2.
  • duży salon z aneksem kuchennym i jadalnią  ( pow 37 m2) z wyjściem na balkon , dwie sypialnie  , komunikacja i łazienka z wc, pomieszczenie gospodarcze i klatka schodowa- jest możliwość wygospodarowania czwartego pokoju
  • powierzchnia ogródka ok  100 m2
STANDARD WYKOŃCZENIA
  • apartamenty na piętrze posiadają  balkon 
  • każdy apartament ma oddzielne wejście,
  • własne ogrzewanie gazowe, 
  • klimatyzację,  
  • nowoczesne okna , trzyszybowe z wkładem,
  • rolety zewnętrzne sterowane elektrycznie,
  • przynależny parking
  • posiadają ogródek o pow.ok 100 m2
  • Apartamenty będą sprzedawane w stanie deweloperskim, oddane do użytkowania.
  • w cenie zakupu dwufunkcyjny piec gazowy i klimatyzator
ZAPRASZAMY -KUPUJESZ GOTOWE MIESZKANIE CAŁKOWICIE FINANSOWANE PRZEZ INWESTORA!
        
                                 KLIENT KUPUJĄCY NIE PŁACI PCC




             Serdecznie zapraszamy do kontaktu w celu uzyskania większej ilości szczegółów. 
 

OFERTA TYLKO W NASZYM BIURZE !!!
 

KB Nieruchomości
Katarzyna Biernat

tel 510 777 020 

Atutem naszej firmy jest kompleksowa obsługa klienta.
Z niezależnym ekspertem finansowym dostaniesz najlepszy kredyt bez dodatkowych opłat.
Niezależny ekspert finansowy pomoże zaoszczędzić Twój czas, a współpraca z nim to komfort i wygoda. Otrzymasz kompleksowe i rzetelne wsparcie, a proces finalizacji zakupu przebiegnie skutecznie i sprawnie bez dodatkowych opłat.
Posiadamy aktualne oferty 12 banków w jednym miejscu. Ponad to oferujemy również pomoc w zakresie kredytów gotówkowych, konsolidacyjnych, firmowych, pożyczek hipotecznych.

Skontaktuj się w sprawie kredytu z Izabelą Podolak
tel: 604493063
e-mail:  izabela.podolak@kbnieruchomosci.com
izabela.podolak@expander-plus.pl

Nota prawna

Opis oferty zawarty na stronie internetowej sporządzany jest na podstawie oględzin nieruchomości oraz informacji uzyskanych od właściciela, może podlegać aktualizacji i nie stanowi oferty określonej w art. 66 i następnych K.C.

Szczegóły oferty

Symbol oferty KBN-MS-1256
Powierzchnia 76,13 m²
Powierzchnia użytkowa 76,13 m²
Liczba pokoi 3
Piętro 1
Rodzaj budynku apartamentowiec
Standard
Opłaty w czynszu fundusz remontowy
Opłaty wg liczników gaz, prąd, woda
Liczba pięter w budynku 1
Stan lokalu do wykończenia
Stan prawny Własność
Okna PCV
Instalacje ELEKTRYCZNA, GAZOWA, TELEFONICZNA, INTERNETOWA
Balkon duży
Liczba balkonów 1
Rok budowy 2024
Widok las
Gaz jest
Woda jest
Dojazd droga utwardzona
Otoczenie działki zabudowane
Ogrzewanie C.O. GAZOWE
Usytuowanie trójstronne

Kalkulator kredytowy

PLN
%
Wysokość raty

Kalkulator kosztów

PLN
PLN
PLN
PLN
PLN
PLN
%
PLN
Podatek od czynności cywilno-prawnych
Taksa notarialna (opłata notarialna)
VAT od taksy notarialnej (opłaty notarialnej)
Wniosek do WKW
VAT od wniosku do WKW
Prowizja agencji nieruchomości
VAT od prowizji agencji nieruchomości
Wypisy aktu notarialnego - około
RAZEM (cena + opłaty)

Podobne oferty

oferta na wyłączność
mieszkanie na sprzedaż - Wodzisław Śląski

mieszkanie na sprzedaż

Wodzisław Śląski
3 pokoje 80,96 m2 8 584,49 zł/m2

Napisz do nas

Proszę wypełnić to pole
Proszę wypełnić to pole
Proszę wypełnić to pole
Proszę wypełnić to pole
Trwa wysyłanie...

Ta strona wykorzystuje pliki cookies w celach statystycznych oraz w celu dostosowania naszych serwisów do indywidualnych potrzeb klientów. Zmiany ustawień dotyczących plików cookie można dokonać w dowolnej chwili modyfikując ustawienia przeglądarki. Korzystanie z tej strony bez zmian ustawień dotyczących cookies oznacza, że będą one zapisane w pamięci urządzenia.

rozumiem